Idéalement situé à Chavagne !
À proximité de Mordelles, cette maison à étage bénéficie d'une belle luminosité et d'un jardin de 219m².
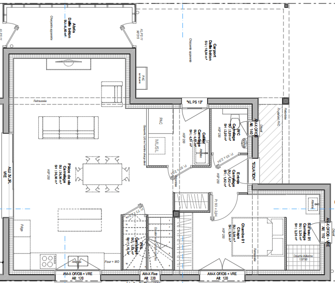
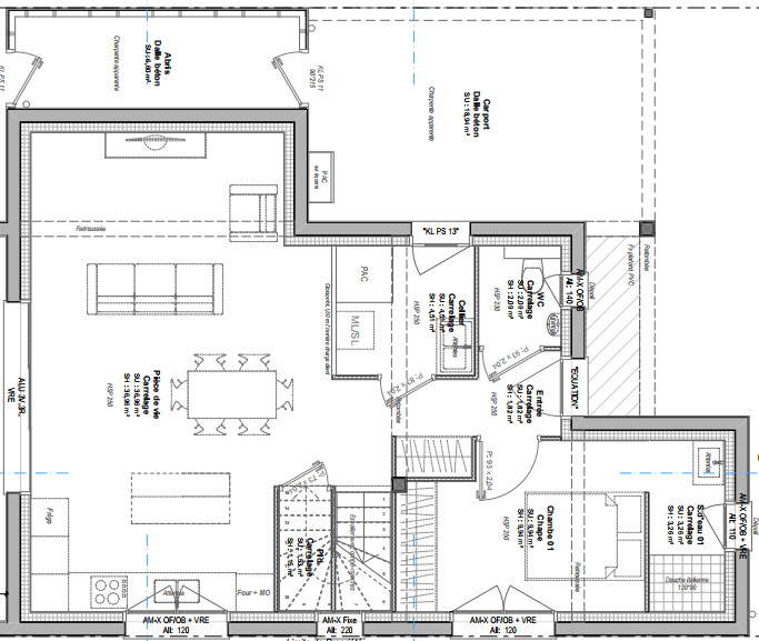
Cette maison comprend au rez-de-chaussée : une entrée, une cuisine ouverte, une buanderie, des WC séparés, un Salon / Séjour de 37m², une chambre parentale de 10m² avec placard,
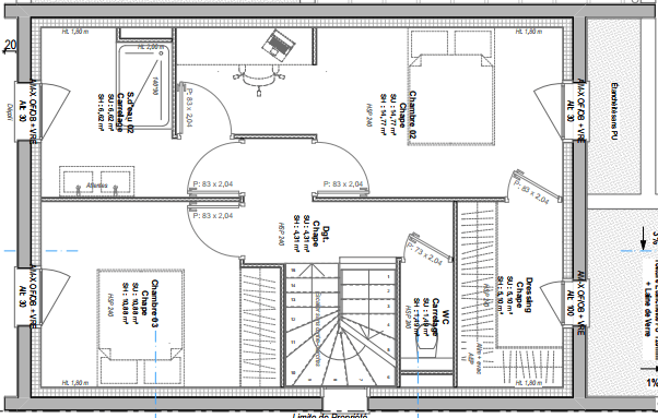
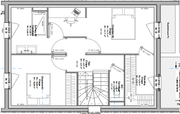
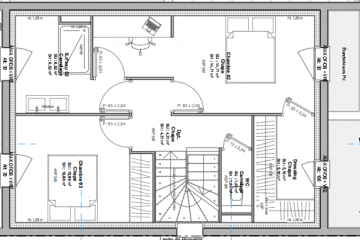
l'étage, vous pourrez profiter de WC séparés, d'une chambre parentale de 25m² avec salle d'eau et dressing et d'une deuxieme chambre.
Possibilité de faire 3 chambres à l'étage.
Cette maison dispose également d'un carport ouvert attenant et d'un abri de jardin.
Votre projet Maison + Terrain à partir de 300072€ (Hors frais)
NON MANDATÉ POUR LA VENTE DES TERRAINS
Maisons CREATION Rennes n’est pas chargé de réaliser la vente des terrains à bâtir mentionnés dans ces annonces.
Maisons CREATION Rennes agit seulement en qualité de constructeur.
Sous réserve de disponibilité de notre partenaire foncier.
Informations complémentaires
| Chambre(s) : 3 | Salle(s) de bain : 2 | Surface habitable : 102 m² |
| Surface terrain : 219 m² | Surface annexe : 37 m² | Garage(s) : 0 |
| Prix : 300 072 € |
Géolocalisation du bien
*Terrain proposé et vendu par notre partenaire foncier selon disponibilité et autorisation de publicité, prix du terrain hors frais de notaire et d’hypothèque.
Prix maison : hors papiers peints, peintures, revêtements de sol dans les chambres, cuisines, meubles vasques, et faïences (modifiable sans préavis, prix variables suivant les prestations souhaitées) hors frais d’hypothèque.





