A découvrir à Châteaubourg !
Située à proximité de l'axe Rennes - Paris, cette maison design bénéficie d'une belle luminosité et d'un jardin et 365m².
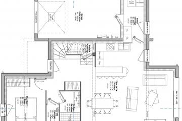
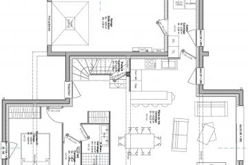
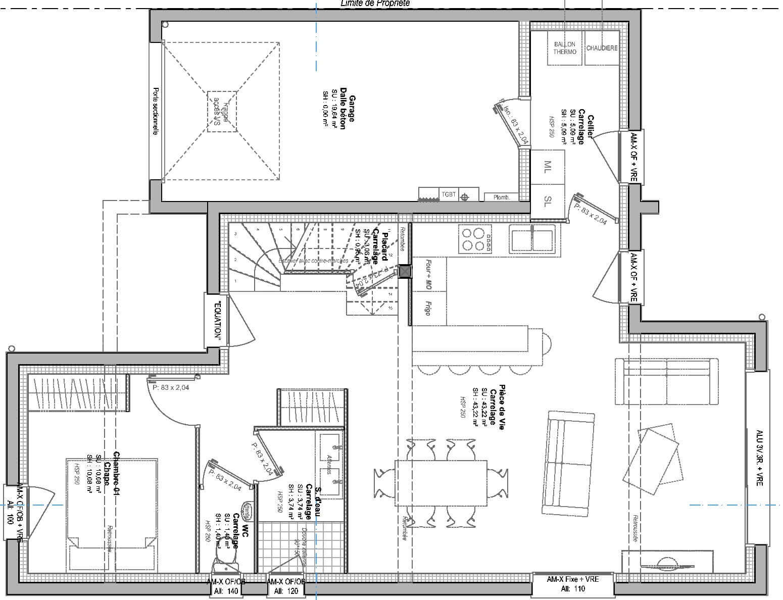
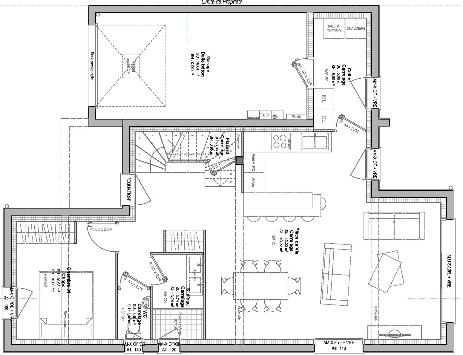
Cette maison comprend au rez-de-chaussée, une entrée, une cuisine ouverte, un Salon / Séjour de 43m², une chambre parentale, avec une salle d'eau, avec placard, de WC séparés,
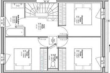
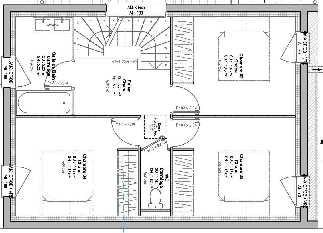
A l'étage, vous pourrez profiter de 3 chambres, avec placard, d'une salle de bains, et de WC séparés.
Cette maison dispose également d'un garage attenant.
Votre projet Maison + Terrain à partir de 292000€ (Hors frais)
Informations complémentaires
| Chambre(s) : 4 | Salle(s) de bain : 2 | Surface habitable : 101 m² |
| Surface terrain : 365 m² | Surface annexe : 43 m² | Garage(s) : 1 |
| Prix : 292 000 € |
Géolocalisation du bien
*Terrain proposé et vendu par notre partenaire foncier selon disponibilité et autorisation de publicité, prix du terrain hors frais de notaire et d’hypothèque.
Prix maison : hors papiers peints, peintures, revêtements de sol dans les chambres, cuisines, meubles vasques, et faïences (modifiable sans préavis, prix variables suivant les prestations souhaitées) hors frais d’hypothèque.





