MAISONS CREATION vous propose un projet de construction situé à Chantepie, dans un environnement calme et arboré, sur un terrain de 231 m², à proximité des commodités.
Maison 120 m² – 4 chambres
Cet exemple de maison familiale de 120 m² habitables se compose :
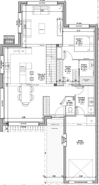
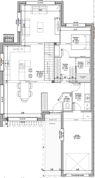
Au rez-de-chaussée :
- Une suite parentale avec dressing et salle d’eau
- Une pièce de vie d’environ 50 m², lumineuse et conviviale
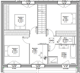
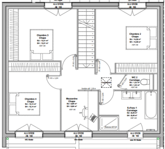
À l’étage :
- 3 chambres
- Des espaces nuit bien agencés, adaptés aux besoins de la famille
Le projet est implanté sur un terrain de 231 m², dans un cadre calme et arboré.
Pour de plus amples renseignements, contactez notre équipe commerciale MAISONS CREATION : 02 99 05 36 46
Informations complémentaires
| Chambre(s) : 4 | Salle(s) de bain : 2 | Surface habitable : 120 m² |
| Surface terrain : 231 m² | Surface annexe : 50 m² | Garage(s) : 1 |
| Prix : 351 000 € |
Géolocalisation du bien
*Terrain proposé et vendu par notre partenaire foncier selon disponibilité et autorisation de publicité, prix du terrain hors frais de notaire et d’hypothèque.
Prix maison : hors papiers peints, peintures, revêtements de sol dans les chambres, cuisines, meubles vasques, et faïences (modifiable sans préavis, prix variables suivant les prestations souhaitées) hors frais d’hypothèque.





