Nous vous proposons un projet de construction moderne et confortable, idéalement situé au cœur d’un environnement calme et arboré.
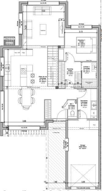
Cette maison familiale de 120 m² habitables saura séduire par ses beaux volumes et sa fonctionnalité :
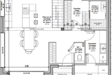
- 4 chambres, dont une suite parentale au rez-de-chaussée avec dressing et salle d’eau pour un confort au quotidien,
- Une spacieuse pièce de vie d’environ 50 m², lumineuse et conviviale, pensée pour partager de beaux moments en famille ou entre amis,
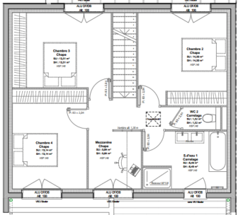
- À l’étage, des chambres accueillantes et bien agencées pour répondre aux besoins de toute la famille.
Le tout est édifié sur un terrain de 231 m², offrant la tranquillité d’un cadre verdoyant, tout en restant proche des commodités de Chantepie.
Une belle opportunité d’allier qualité de vie, confort moderne et sérénité dans un cadre privilégié.
N’attendez plus pour vous renseigner et imaginer votre futur chez-vous à Chantepie !
Informations complémentaires
| Chambre(s) : 4 | Salle(s) de bain : 2 | Surface habitable : 120 m² |
| Surface terrain : 231 m² | Surface annexe : 50 m² | Garage(s) : 1 |
| Prix : 351 000 € |
Géolocalisation du bien
*Terrain proposé et vendu par notre partenaire foncier selon disponibilité et autorisation de publicité, prix du terrain hors frais de notaire et d’hypothèque.
Prix maison : hors papiers peints, peintures, revêtements de sol dans les chambres, cuisines, meubles vasques, et faïences (modifiable sans préavis, prix variables suivant les prestations souhaitées) hors frais d’hypothèque.





