Exclusivité à Chanteloup !
Située à Chanteloup, à proximité de Bourgbarré, Corps-Nuds, cette maison en monopente zinc dispose d'un jardin de 510m² et d'une orientation Sud idéale.
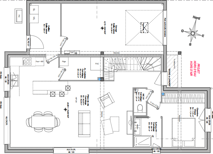
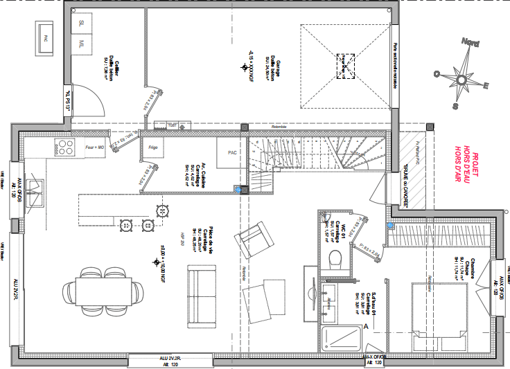
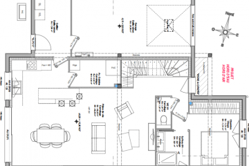
Cette maison est un projet hors d'eau / hors d'air (la maison est laissée aux clients, une fois le gros œuvre, les fenêtres, la couverture et le ravalement fait) et comprend :
* au rez-de-chaussée : une pièce de vie de 48m² avec cuisine ouverte, une arrière-cuisine, des WC séparés, une chambre parentale avec salle d'eau de 15m² et un cellier,
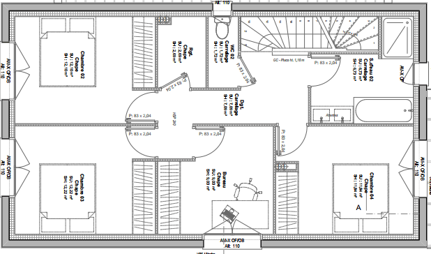
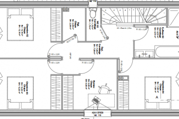
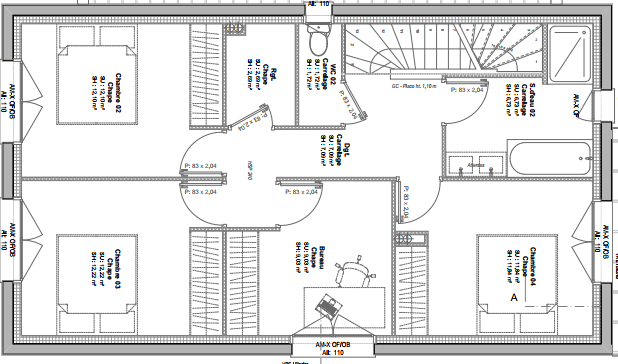
* à l'étage : 3 chambres, un bureau qui peut se transformer en 5ème chambre, des WC séparés, un placard de rangement et une salle de bains (avec baignoire et douche).
Cette maison dispose également d'un garage attenant.
Votre projet Maison + Terrain à partir de 266000€ (Hors frais).
Pour terminer la maison : il faut prévoir les travaux d'électricité, cloisons, plomberie, escalier, menuiseries intérieures, chauffage, peinture, sols et faïence.
NON MANDATÉ POUR LA VENTE DES TERRAINS
Maisons CREATION Rennes n’est pas chargé de réaliser la vente des terrains à bâtir mentionnés dans ces annonces.
Maisons CREATION Rennes agit seulement en qualité de constructeur.
Informations complémentaires
| Chambre(s) : 5 | Salle(s) de bain : 2 | Surface habitable : 133 m² |
| Surface terrain : 510 m² | Surface annexe : 48 m² | Garage(s) : 1 |
| Prix : 266 000 € |
Géolocalisation du bien
*Terrain proposé et vendu par notre partenaire foncier selon disponibilité et autorisation de publicité, prix du terrain hors frais de notaire et d’hypothèque.
Prix maison : hors papiers peints, peintures, revêtements de sol dans les chambres, cuisines, meubles vasques, et faïences (modifiable sans préavis, prix variables suivant les prestations souhaitées) hors frais d’hypothèque.




