Dans un écrin de verdure, cette maison bénéficie d'une belle luminosité et d'un jardin de 421m²
Situé près d'un parc, de commodités et proche des transports elle est composée de 6 pièces répartie sur 156m² habitable.
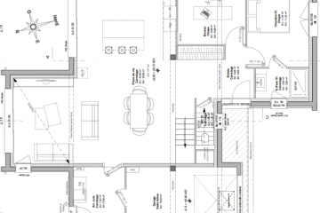
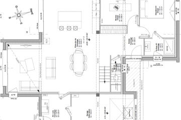
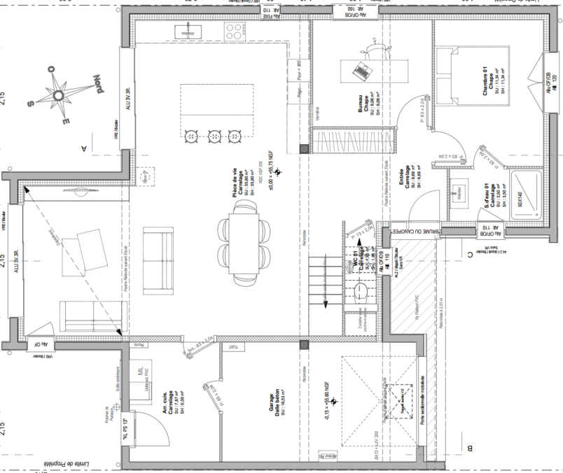
Cette maison comprend au rez-de-chaussée, une entrée, un Salon / Séjour de 56m² avec cuisine ouverte, une buanderie, des WC séparés et enfin d'une chambre parentale, avec une salle d'eau, avec dressing ou bureau,
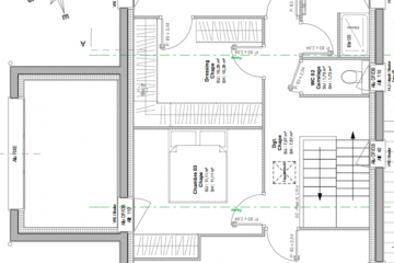
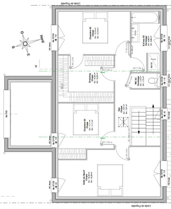
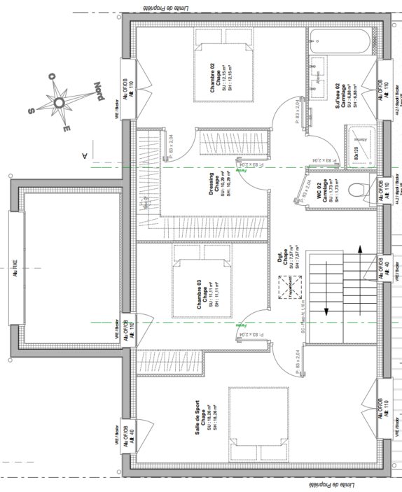
A l'étage, vous pourrez profiter, de WC séparés, d'une salle de bain, de 3 chambre de 18m² avec dressing, 12m² et 11m², de combles aménageables.
Votre projet Maison + Terrain à partir de 630000€ (Hors frais)
NON MANDATÉ POUR LA VENTE DES TERRAINS
Maisons CREATION Rennes n’est pas chargé de réaliser la vente des terrains à bâtir mentionnés dans ces annonces.
Maisons CREATION Rennes agit seulement en qualité de constructeur.
Sous réserve de disponibilité de notre partenaire foncier.
Informations complémentaires
| Chambre(s) : 4 | Salle(s) de bain : 2 | Surface habitable : 156 m² |
| Surface terrain : 421 m² | Surface annexe : 56 m² | Garage(s) : 1 |
| Prix : 630 000 € |
Géolocalisation du bien
*Terrain proposé et vendu par notre partenaire foncier selon disponibilité et autorisation de publicité, prix du terrain hors frais de notaire et d’hypothèque.
Prix maison : hors papiers peints, peintures, revêtements de sol dans les chambres, cuisines, meubles vasques, et faïences (modifiable sans préavis, prix variables suivant les prestations souhaitées) hors frais d’hypothèque.





