MAISONS CRÉATION vous propose un projet de construction RE2020 idéalement situé à Cancale, à proximité immédiate du centre-ville, du port, des plages, ainsi que de l’ensemble des commodités et commerces.
Le projet est implanté sur un terrain de 335 m², exposé OUEST et SUD, offrant une excellente luminosité et un cadre de vie privilégié en bord de mer.
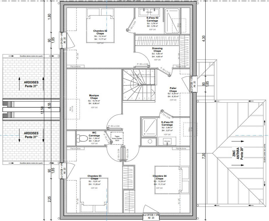
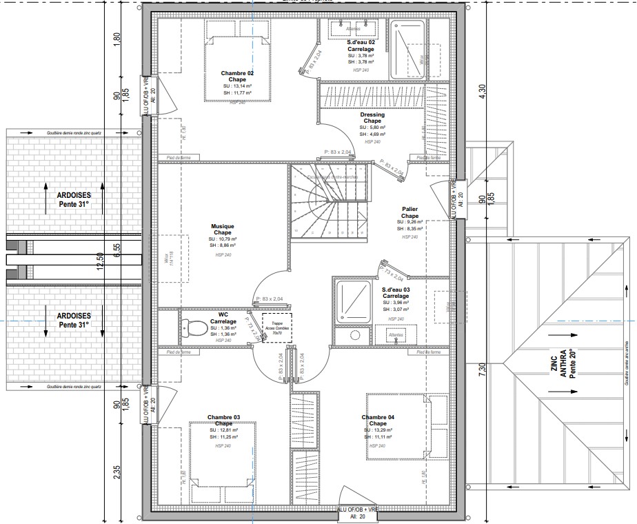
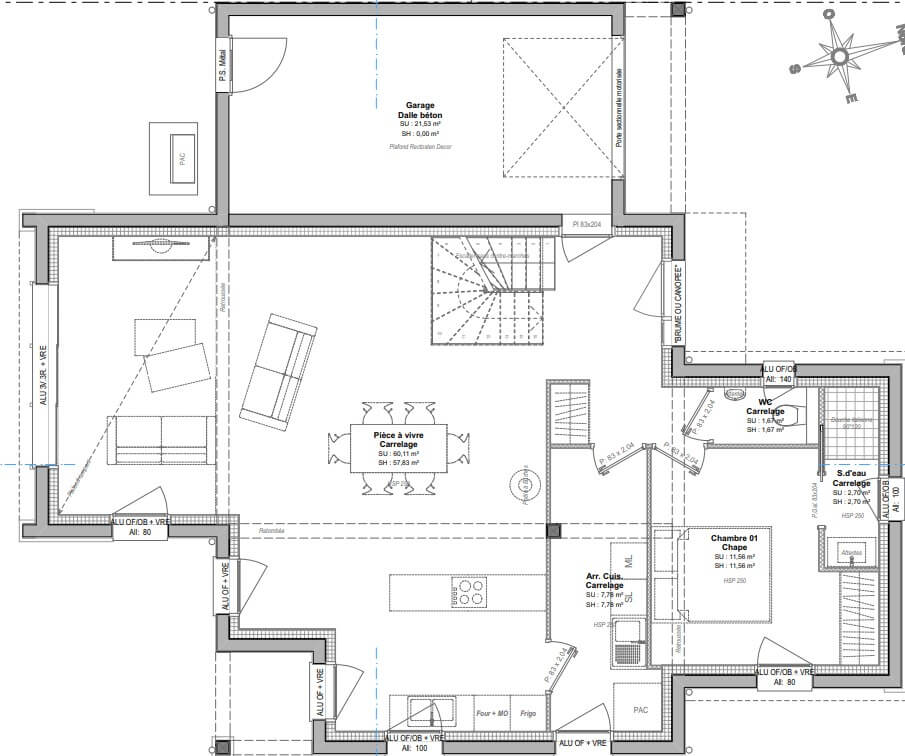
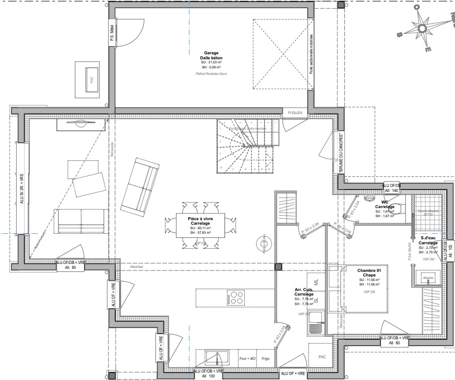
Cet exemple de maison RE2020 développe 148 m² habitables et se compose :
Au rez-de-chaussée :
- Une grande pièce de vie lumineuse
- Une suite parentale avec dressing et salle d’eau privative
- Un espace fonctionnel pensé pour le confort quotidien
À l’étage :
- Un dégagement très lumineux
- 3 belles chambres
- Une salle de bains moderne
Annexes
- Un grand garage, offrant un bel espace de rangement
Un projet personnalisable
Projet incluant le prix du terrain, les garanties et assurances (hors frais annexes liés au terrain et aux finitions de la maison).
Pour plus de renseignements, contactez notre équipe commerciale MAISONS CRÉATION : 02 99 05 36 46
Informations complémentaires
| Chambre(s) : 4 | Salle(s) de bain : 2 | Surface habitable : 148 m² |
| Surface terrain : 335 m² | Surface annexe : 46 m² | Garage(s) : 1 |
| Prix : 499 900 € |
Géolocalisation du bien
*Terrain proposé et vendu par notre partenaire foncier selon disponibilité et autorisation de publicité, prix du terrain hors frais de notaire et d’hypothèque.
Prix maison : hors papiers peints, peintures, revêtements de sol dans les chambres, cuisines, meubles vasques, et faïences (modifiable sans préavis, prix variables suivant les prestations souhaitées) hors frais d’hypothèque.



