Découvrez cette opportunité de construction d'une maison individuelle à Brécé, conforme aux normes RE2020.
Le terrain propose une superficie de 277 m² pour un prix de 48475 €.
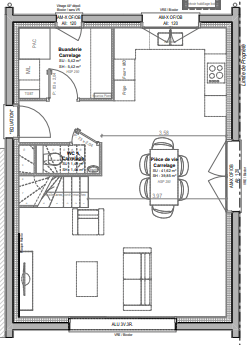
La maison, d'une surface de 91 m², comprend un espace de vie spacieux de 40 m², trois chambres et une salle d'eau.
Les commodités incluent une buanderie et deux WC indépendants.
Le coût de la maison est estimé à 168800 €. Cette résidence à étage offre modernité et confort.
Informations complémentaires
| Chambre(s) : 3 | Salle(s) de bain : 1 | Surface habitable : 91 m² |
| Surface terrain : 277 m² | Surface annexe : 40 m² | Garage(s) : 0 |
| Prix : 217 275 € |
Géolocalisation du bien
*Terrain proposé et vendu par notre partenaire foncier selon disponibilité et autorisation de publicité, prix du terrain hors frais de notaire et d’hypothèque.
Prix maison : hors papiers peints, peintures, revêtements de sol dans les chambres, cuisines, meubles vasques, et faïences (modifiable sans préavis, prix variables suivant les prestations souhaitées) hors frais d’hypothèque.





