À seulement 15 minutes de Rennes et à 5 minutes de la gare de Servon-Sur-Vilaine, MAISONS CRÉATION vous propose un projet sur mesure dans un cadre idéal.
Terrain de 278 m², orientés SUD.
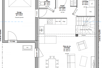
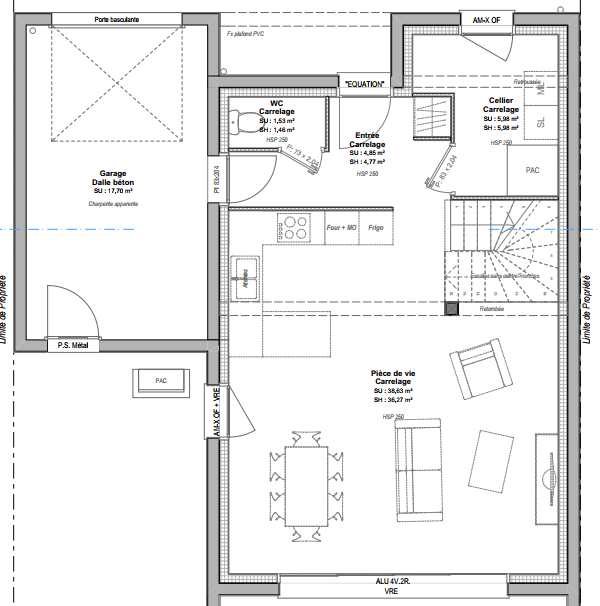
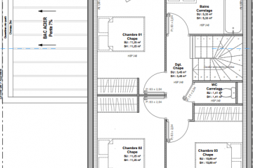
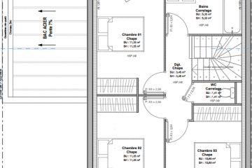
Maison de 3 à 4 chambres, entre 90 m² et 120m² habitables, comprenant :
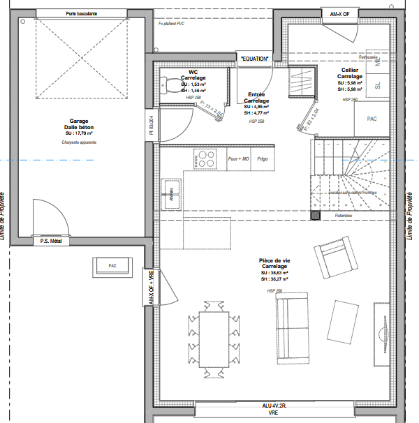
- Au rez-de-chaussée : entrée, pièce de vie d'environ 40 m² avec cuisine ouverte, une buanderie et WC séparés. Possibilité 4ème chambre.
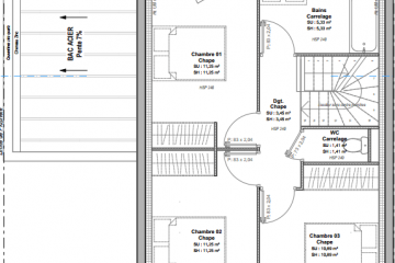
- À l’étage vous trouverez 3 chambres avec placards, une salle de bain et WC séparés. (Possibilité 5ème à l'étage)
En option garage ou carport, viennent compléter ce bien.
Pour plus de renseignements contactez-nous au 02 99 05 36 46.
Informations complémentaires
| Chambre(s) : 3 | Salle(s) de bain : 1 | Surface habitable : 95 m² |
| Surface terrain : 278 m² | Surface annexe : 40 m² | Garage(s) : 1 |
| Prix : 238 650 € |
Géolocalisation du bien
*Terrain proposé et vendu par notre partenaire foncier selon disponibilité et autorisation de publicité, prix du terrain hors frais de notaire et d’hypothèque.
Prix maison : hors papiers peints, peintures, revêtements de sol dans les chambres, cuisines, meubles vasques, et faïences (modifiable sans préavis, prix variables suivant les prestations souhaitées) hors frais d’hypothèque.






