MAISONS CRÉATION vous propose un projet de construction situé à Bréal-sous-Montfort, dans un emplacement privilégié, à proximité immédiate du bourg et de ses nombreux commerces.
Le projet est implanté sur une parcelle de 371 m², orientée SUD-OUEST, en lisière de lotissement, offrant une belle luminosité et un environnement sans vis-à-vis.
Maison contemporaine – 100 m² – 4 chambres + bureau – Garage
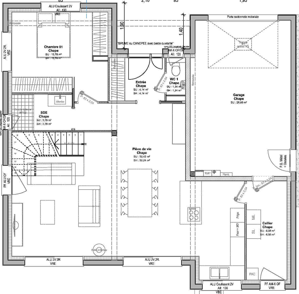
Cet exemple de projet, entièrement personnalisable, développe 100 m² habitables et se compose :
Au rez-de-chaussée :
- Un sas d’entrée avec placard
- Des WC
- Une spacieuse pièce de vie de 50 m², exposée SUD-OUEST, très lumineuse
- Un cellier / buanderie avec accès au garage et au jardin
- Une suite parentale comprenant :
- Une chambre de 14 m² avec grands placards
- Une salle d’eau
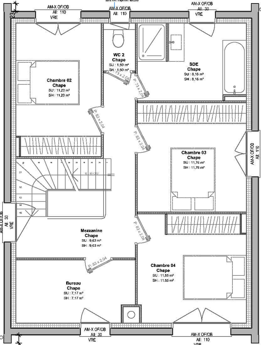
À l’étage :
- Un palier lumineux avec vue sur le séjour
- 3 chambres
- Un bureau
- Une salle de bains avec baignoire et douche
- Un WC séparé
Pour plus de renseignements, contactez notre équipe commerciale MAISONS CRÉATION : 02 99 05 36 46
Informations complémentaires
| Chambre(s) : 4 | Salle(s) de bain : 2 | Surface habitable : 100 m² |
| Surface terrain : 371 m² | Surface annexe : 50 m² | Garage(s) : 1 |
| Prix : 302 000 € |
Géolocalisation du bien
*Terrain proposé et vendu par notre partenaire foncier selon disponibilité et autorisation de publicité, prix du terrain hors frais de notaire et d’hypothèque.
Prix maison : hors papiers peints, peintures, revêtements de sol dans les chambres, cuisines, meubles vasques, et faïences (modifiable sans préavis, prix variables suivant les prestations souhaitées) hors frais d’hypothèque.




