Idéal Primo-accédant à Bréal-sous-Montfort !
Située à Bréal-sous-Montfort, cette maison contemporaine avec une couverture monopente zinc bénéficie d'une belle luminosité et d'un jardin et 371m² orienté Sud-Ouest.
Proche du centre, 5 minutes à pied, à proximité des écoles, elle est composée de 5 pièces répartie sur 95m².
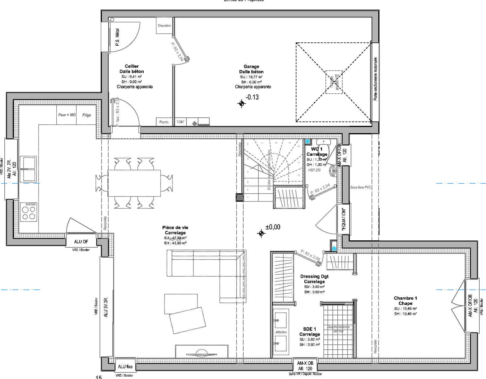
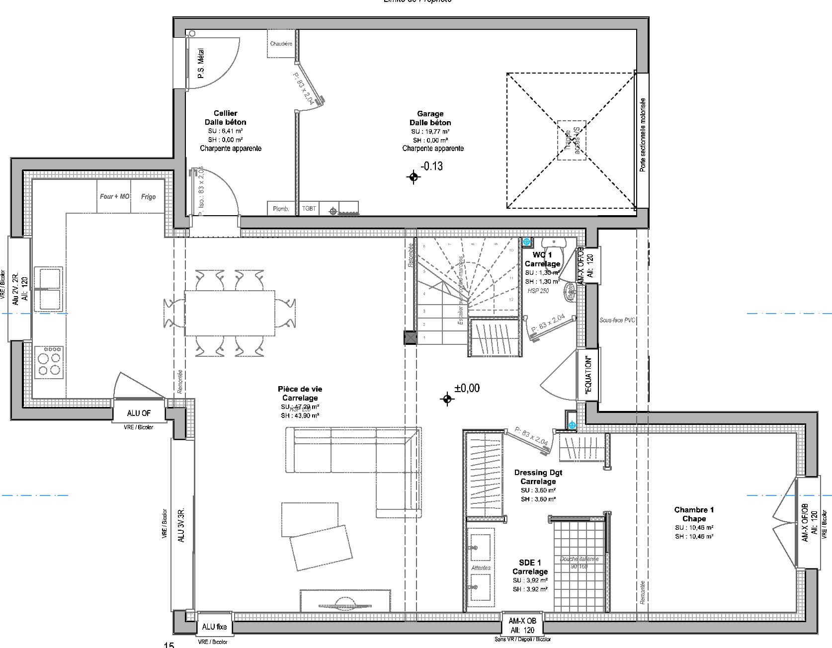
Cette maison comprend au rez-de-chaussée, une entrée, une cuisine ouverte, un Salon / Séjour de 44m², une chambre parentale, avec une salle d'eau et dressing,
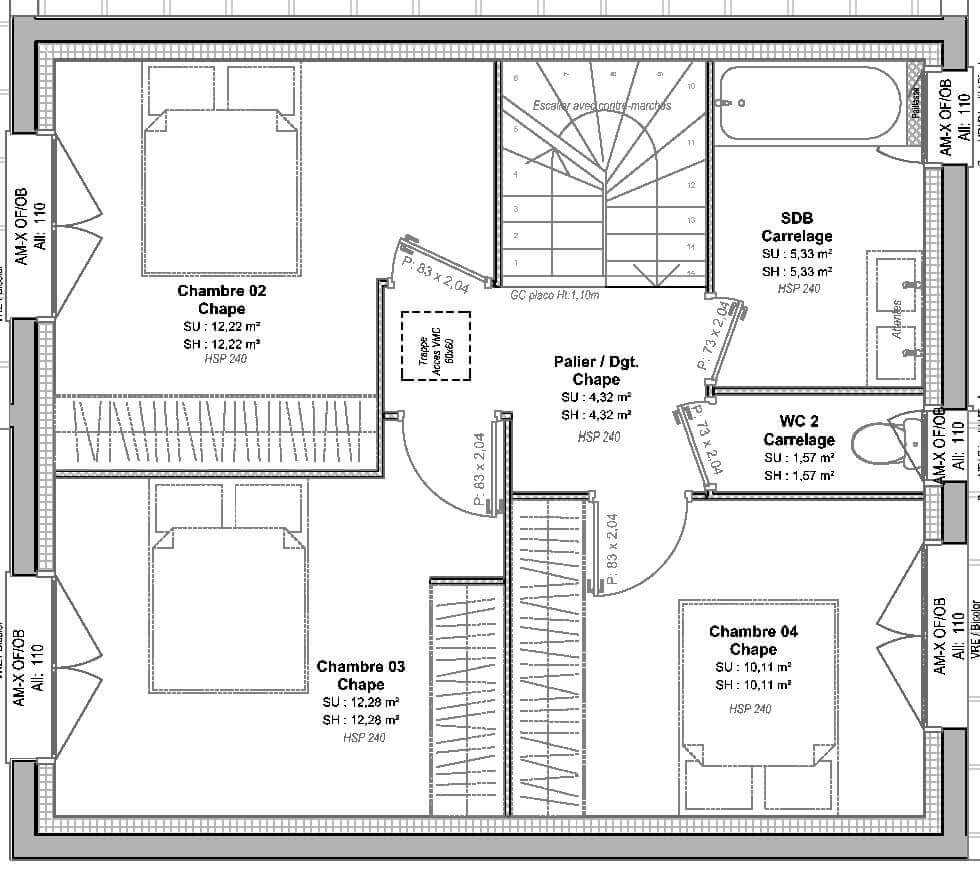
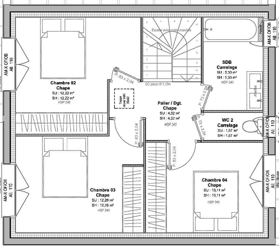
A l'étage, vous pourrez profiter de 3 chambre avec placrad, d'une salle de bain et de WC séparés.
Cette maison dispose également d'un garage attenant.
Votre projet Maison + Terrain à partir de 297000€ (Hors frais)
Informations complémentaires
| Chambre(s) : 4 | Salle(s) de bain : 2 | Surface habitable : 95 m² |
| Surface terrain : 371 m² | Surface annexe : 44 m² | Garage(s) : 1 |
| Prix : 297 000 € |
Géolocalisation du bien
*Terrain proposé et vendu par notre partenaire foncier selon disponibilité et autorisation de publicité, prix du terrain hors frais de notaire et d’hypothèque.
Prix maison : hors papiers peints, peintures, revêtements de sol dans les chambres, cuisines, meubles vasques, et faïences (modifiable sans préavis, prix variables suivant les prestations souhaitées) hors frais d’hypothèque.





