Au cœur du quartier ZAC DE LA GREE à BOURGBARRE, MAISONS CREATION vous propose un projet de construction personnalisable.
Sur un terrain de 230m², dans un environnement paysager et préservé agrémenté de cheminements arborés, nous vous suggérons une maison avec un étage de 70m².
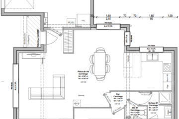
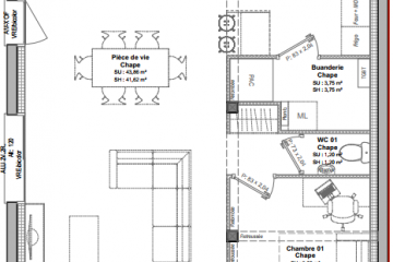
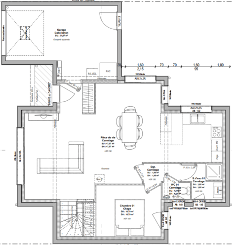
Au rez-de-chaussée le plan se compose d’une pièce de vie de 3m² avec cuisine ouverte, local technique et WC indépendants.
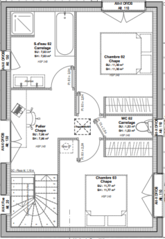
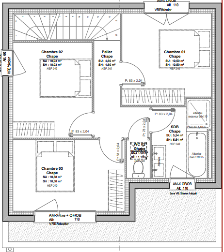
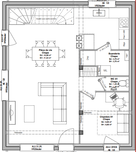
À l’étage vous trouverez 2 chambres dont une de 13m² équipées de placards, une salle de bains et des WC séparés.
Une partie des aménagements extérieurs sont prévus.
Les plans intérieurs peuvent être réétudiés.
Budget global (frais de notaire et frais annexes à la maison) : 220 000€
Informations complémentaires
| Chambre(s) : 2 | Salle(s) de bain : 1 | Surface habitable : 70 m² |
| Surface terrain : 230 m² | Surface annexe : 31 m² | Garage(s) : 0 |
| Prix : 191 000 € |
Géolocalisation du bien
*Terrain proposé et vendu par notre partenaire foncier selon disponibilité et autorisation de publicité, prix du terrain hors frais de notaire et d’hypothèque.
Prix maison : hors papiers peints, peintures, revêtements de sol dans les chambres, cuisines, meubles vasques, et faïences (modifiable sans préavis, prix variables suivant les prestations souhaitées) hors frais d’hypothèque.





