Exclusivité à BOURGBARRE !
A 15 minutes de RENNES, dans le quartier ZAC de la Grée, MAISONS CREATION vous propose une maison design à proximité des écoles, près des commodités et services.
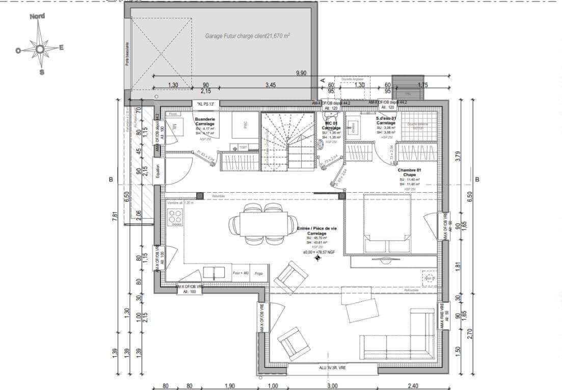
Cette maison à étage composée de 6 pièces répartie sur 110m² , bénéficie d'une belle luminosité et d'un jardin et 413m² orienté Sud Ouest.
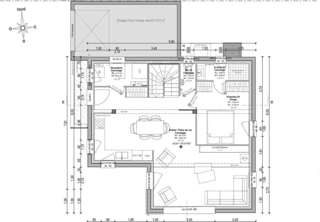
Au rez-de-chaussée : une entrée avec placard,une buanderie de 4 m², la cuisine est ouverte sur un séjour de 45 m² donnant accès sur la terrasse.
Ce niveau dispose d'une suite parentale de 12 m² avec une salle d'eau, un dressing et un WC séparé.
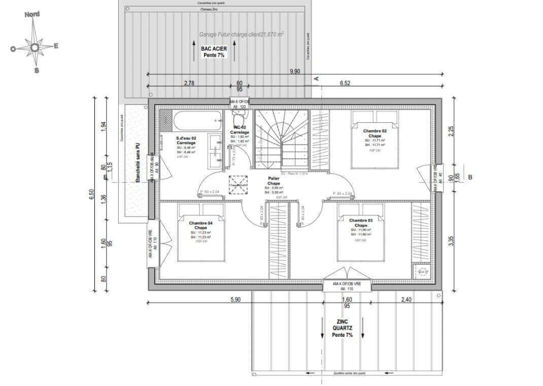
A l'étage, le pallier distribue 3 chambres avec placard et une salle de bain.
Cette maison dispose également d'un garage attenant.
Votre projet Maison + Terrain à partir de 332 500 € (Hors frais)
Sous réserve de disponibilité de notre partenaire foncier.
Informations complémentaires
| Chambre(s) : 4 | Salle(s) de bain : 2 | Surface habitable : 110 m² |
| Surface terrain : 413 m² | Surface annexe : 51 m² | Garage(s) : 1 |
| Prix : 332 500 € |
Géolocalisation du bien
*Terrain proposé et vendu par notre partenaire foncier selon disponibilité et autorisation de publicité, prix du terrain hors frais de notaire et d’hypothèque.
Prix maison : hors papiers peints, peintures, revêtements de sol dans les chambres, cuisines, meubles vasques, et faïences (modifiable sans préavis, prix variables suivant les prestations souhaitées) hors frais d’hypothèque.





