MAISONS CRÉATION vous propose un projet de construction situé à Bourgbarré, à 15 minutes de Rennes, dans le quartier de la ZAC de la Grée, à proximité des écoles, commodités et services.
Cet exemple de maison à étage de 110 m² habitables, bénéficiant d’une belle luminosité et d’un jardin, se compose :
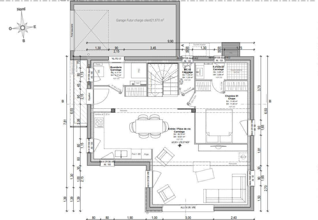
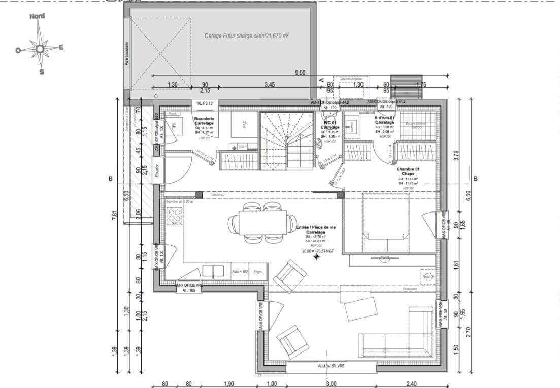
Au rez-de-chaussée :
- Une entrée avec placard
- Une buanderie de 4 m²
- Une cuisine ouverte sur un séjour de 45 m², avec accès à la terrasse
- Une suite parentale de 12 m² avec salle d’eau, dressing
- Des WC séparés
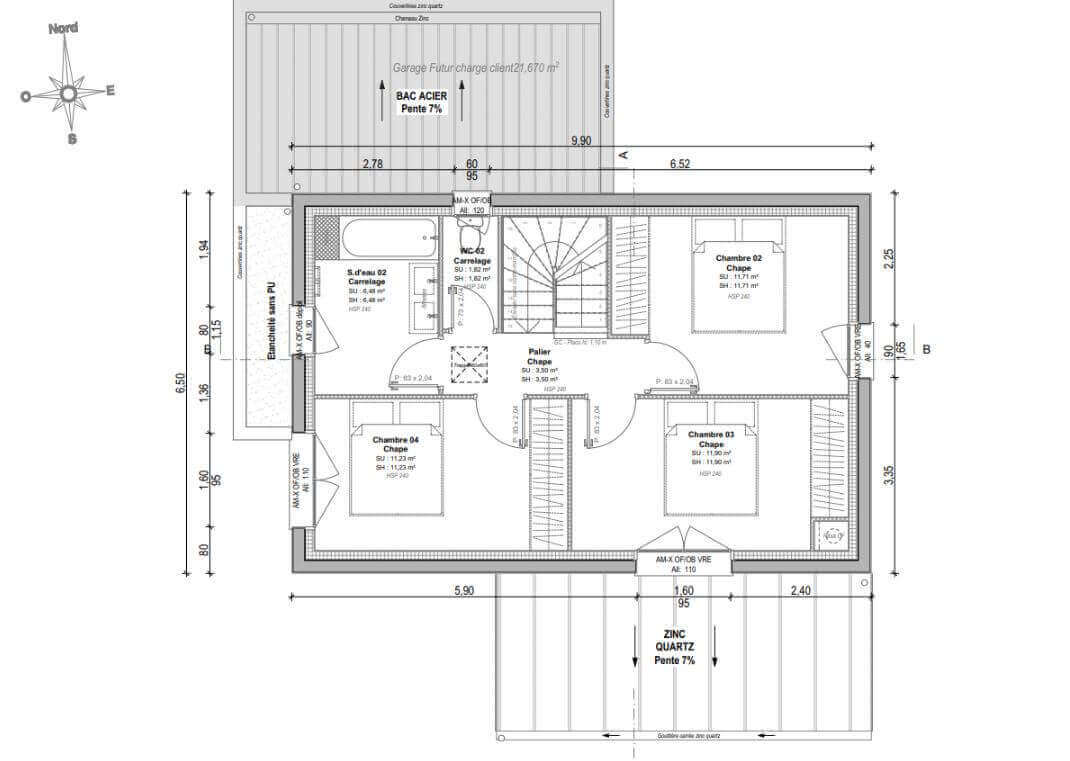
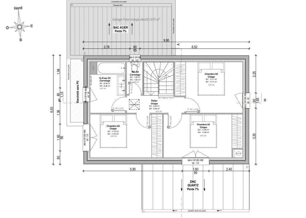
À l’étage :
- 3 chambres avec placards
- Une salle de bain
Annexes
- Un garage attenant
Informations complémentaires
| Chambre(s) : 4 | Salle(s) de bain : 2 | Surface habitable : 110 m² |
| Surface terrain : 413 m² | Surface annexe : 51 m² | Garage(s) : 1 |
| Prix : 332 500 € |
Géolocalisation du bien
*Terrain proposé et vendu par notre partenaire foncier selon disponibilité et autorisation de publicité, prix du terrain hors frais de notaire et d’hypothèque.
Prix maison : hors papiers peints, peintures, revêtements de sol dans les chambres, cuisines, meubles vasques, et faïences (modifiable sans préavis, prix variables suivant les prestations souhaitées) hors frais d’hypothèque.





