MAISONS CRÉATION vous propose un projet de construction situé à Bourgbarré, à proximité de Rennes, dans le quartier de la ZAC de la Grée, proche du centre, des commodités, des services et des transports (environ 10 minutes à pied).
Cet exemple de maison traditionnelle à étage en ardoise, bénéficiant d’une belle luminosité et d’un jardin, se compose de 118 m² habitables répartis sur 6 pièces :
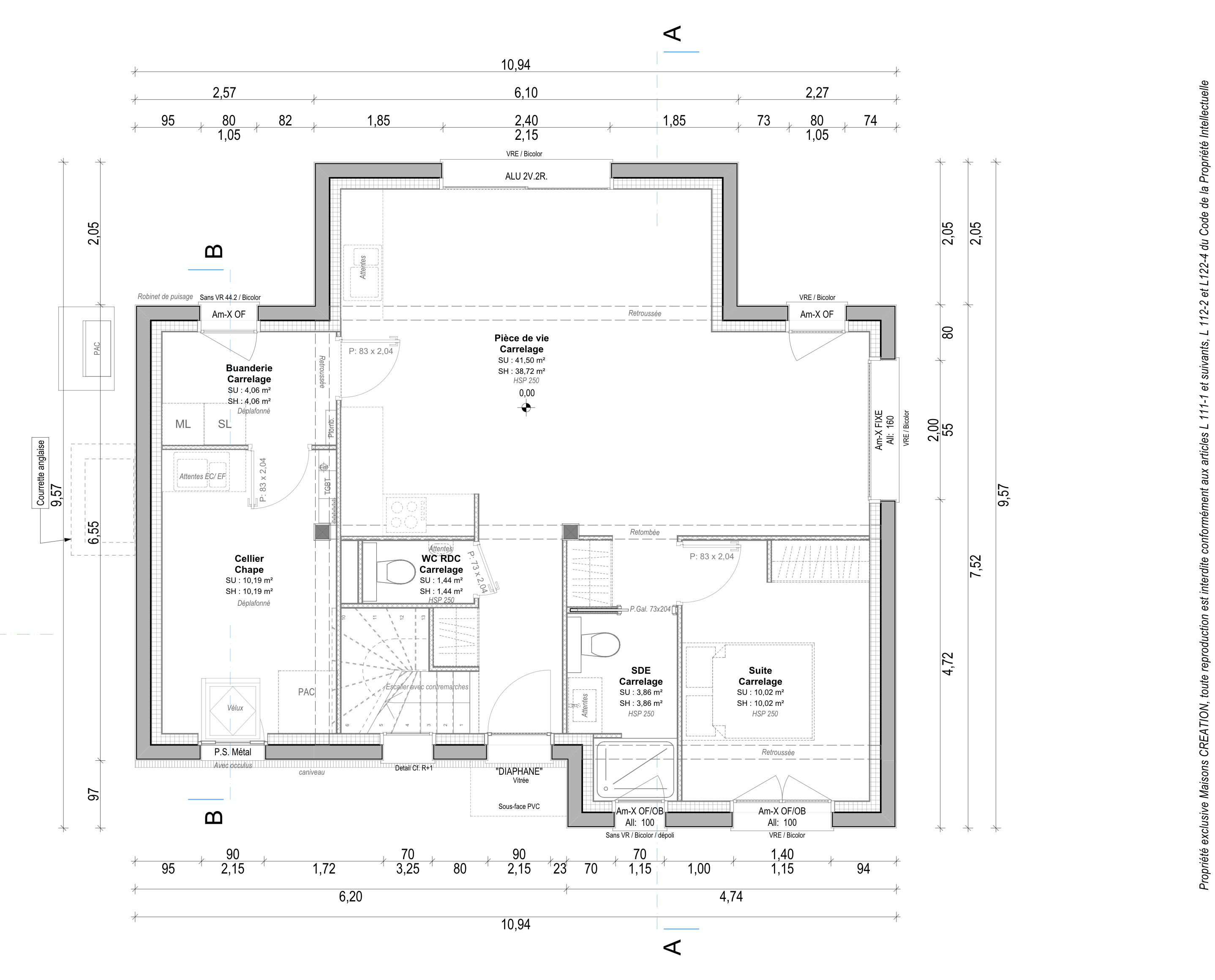
Au rez-de-chaussée :
- Une entrée
- Une cuisine ouverte sur un salon / séjour de 44 m²
- Une chambre parentale de 11 m² avec salle d’eau et dressing
- Des WC séparés
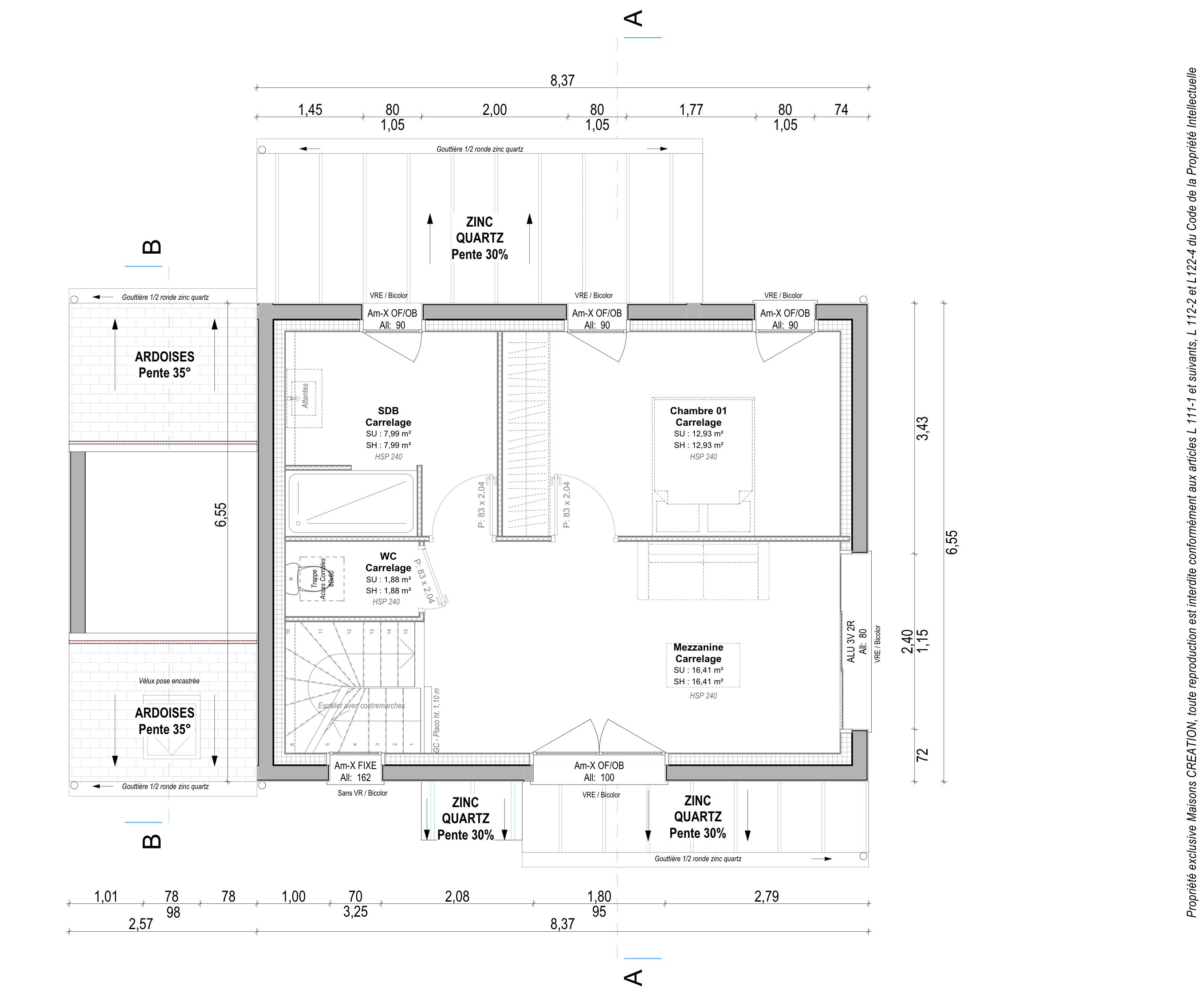
À l’étage :
- 3 chambres avec placards
- Une salle de bains
- Des WC séparés
Annexes
- Un garage attenant
Informations complémentaires
| Chambre(s) : 4 | Salle(s) de bain : 2 | Surface habitable : 118 m² |
| Surface terrain : 341 m² | Surface annexe : 42 m² | Garage(s) : 1 |
| Prix : 302 135 € |
Géolocalisation du bien
*Terrain proposé et vendu par notre partenaire foncier selon disponibilité et autorisation de publicité, prix du terrain hors frais de notaire et d’hypothèque.
Prix maison : hors papiers peints, peintures, revêtements de sol dans les chambres, cuisines, meubles vasques, et faïences (modifiable sans préavis, prix variables suivant les prestations souhaitées) hors frais d’hypothèque.





