Au cœur du quartier ZAC DE LA GREE à BOURGBARRE, MAISONS CREATION vous propose un projet de construction personnalisable.
Sur un terrain de 208m², dans un environnement paysager et préservé agrémenté de cheminements arborés, nous vous suggérons une maison avec un étage de 98m².
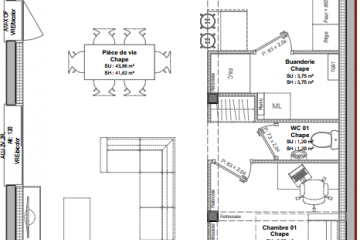
Au rez-de-chaussée le plan se compose d’une grande pièce de vie de 42m² avec cuisine ouverte, buanderie ,WC indépendants, ainsi qu'une chambre d'ami / bureau.
À l’étage vous trouverez 3 chambres avec placards, une salle de bains et des WC séparés.
Un carport vient compléter ce bien.
Les plans intérieurs peuvent être réétudiés.
Informations complémentaires
| Chambre(s) : 4 | Salle(s) de bain : 1 | Surface habitable : 98 m² | 
| Surface terrain : 208 m² | Surface annexe : 42 m² | Garage(s) : 0 | 
| Prix : 237 500 € | 
Géolocalisation du bien
            *Terrain proposé et vendu par notre partenaire foncier selon disponibilité et autorisation de publicité, prix du terrain hors frais de notaire et d’hypothèque.
Prix maison : hors papiers peints, peintures, revêtements de sol dans les chambres, cuisines, meubles vasques, et faïences (modifiable sans préavis, prix variables suivant les prestations souhaitées) hors frais d’hypothèque.        
 
            
 
                                        



