MAISONS CRÉATION vous propose un projet de construction personnalisable situé à Bédée, au cœur du quartier de la ZAC du Pont aux Chèvres, dans un environnement résidentiel, à deux pas du centre bourg.
Cet exemple de maison à étage de 103 m² habitables se compose :
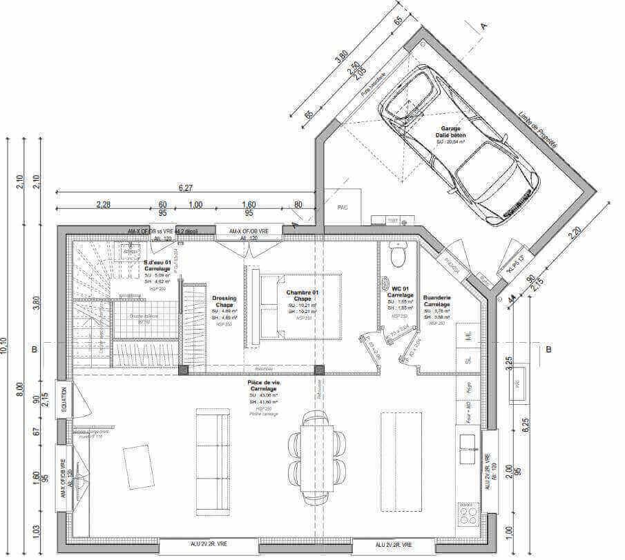
Au rez-de-chaussée :
- Une entrée
- Une pièce de vie de 41 m² avec cuisine ouverte
- Un coin nuit desservant une suite parentale avec dressing et salle d’eau privative
- Des WC séparés
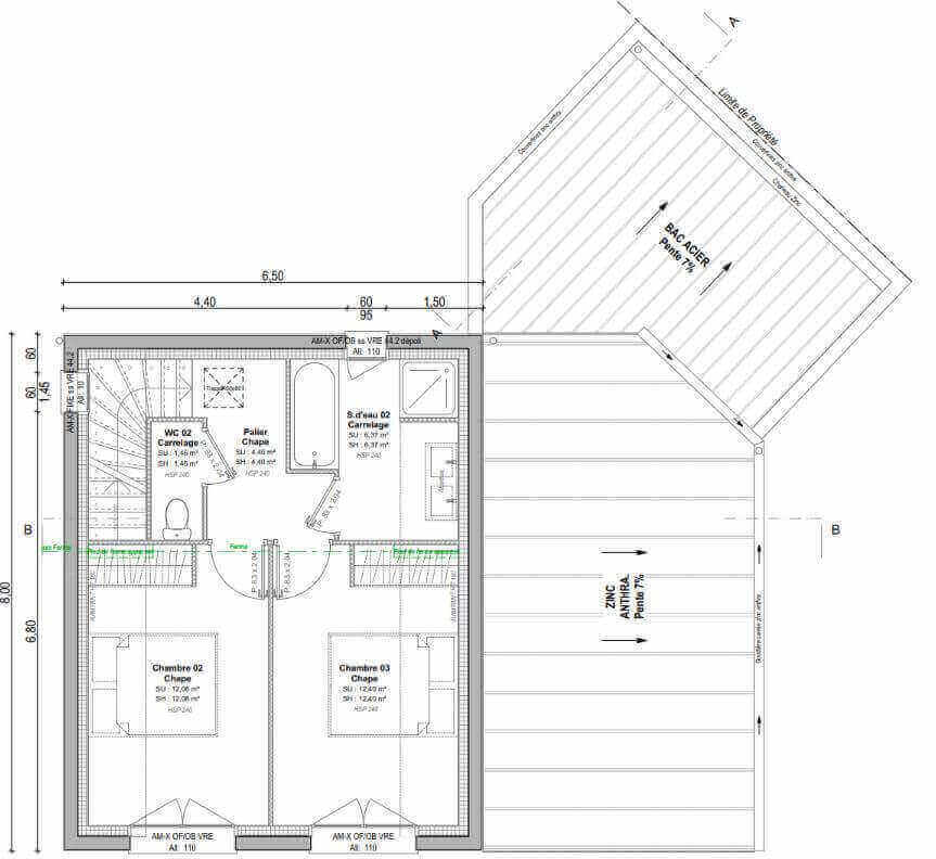
À l’étage :
- 2 chambres avec placards
- Une salle de bain
- Des WC séparés
Annexes
- Une buanderie
- Un garage
Informations complémentaires
| Chambre(s) : 3 | Salle(s) de bain : 2 | Surface habitable : 103 m² |
| Surface terrain : 403 m² | Surface annexe : 41 m² | Garage(s) : 1 |
| Prix : 298 645 € |
Géolocalisation du bien
*Terrain proposé et vendu par notre partenaire foncier selon disponibilité et autorisation de publicité, prix du terrain hors frais de notaire et d’hypothèque.
Prix maison : hors papiers peints, peintures, revêtements de sol dans les chambres, cuisines, meubles vasques, et faïences (modifiable sans préavis, prix variables suivant les prestations souhaitées) hors frais d’hypothèque.





