Au cœur du quartier ZAC DU PONT AUX CHEVRES à BEDEE, MAISONS CREATION vous propose un projet de construction personnalisable dans un environnement résidentiel à deux pas du centre bourg .
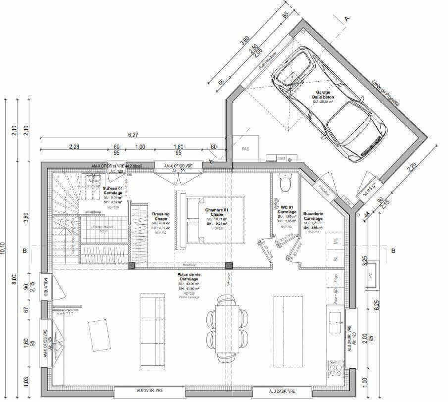
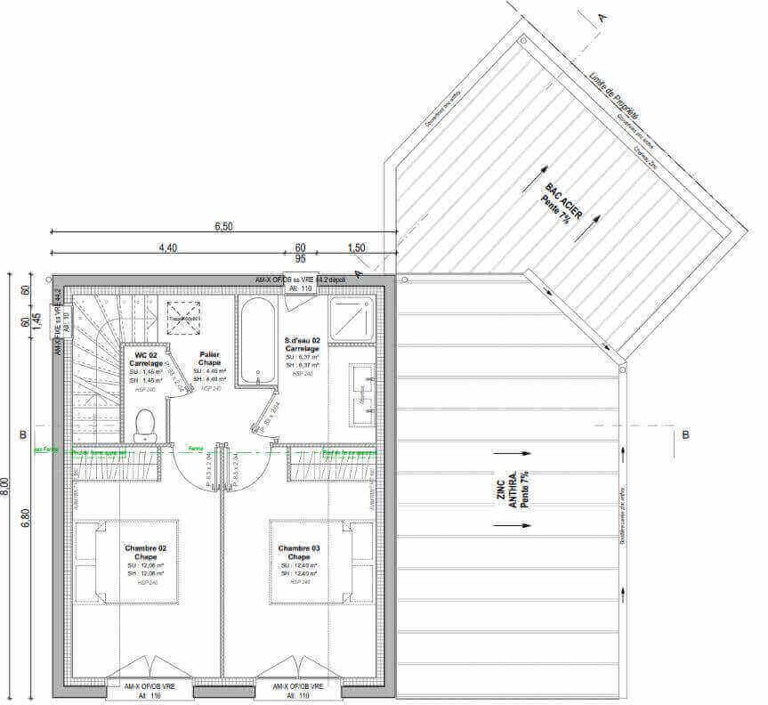
Nous vous suggérons une maison sur étage de 103 m² :
Au rez-de-chaussée le plan se compose d’une entrée, une pièce de vie de 41m² avec cuisine ouverte.
Le coin nuit dessert une suite parentale avec dressing et salle d’eau privative et un WC séparé.
À l’étage vous trouverez 2 chambres avec placards, une salle de bain et un WC séparé.
Une buanderie de 4 m² et un garage de 20 m² viennent compléter ce bien.
Pour de plus amples renseignements contacter notre équipe commerciale MAISONS CREATION – 02 99 05 36 46.
Informations complémentaires
| Chambre(s) : 3 | Salle(s) de bain : 2 | Surface habitable : 103 m² |
| Surface terrain : 403 m² | Surface annexe : 41 m² | Garage(s) : 1 |
| Prix : 298 645 € |
Géolocalisation du bien
*Terrain proposé et vendu par notre partenaire foncier selon disponibilité et autorisation de publicité, prix du terrain hors frais de notaire et d’hypothèque.
Prix maison : hors papiers peints, peintures, revêtements de sol dans les chambres, cuisines, meubles vasques, et faïences (modifiable sans préavis, prix variables suivant les prestations souhaitées) hors frais d’hypothèque.





