MAISONS CRÉATION vous propose un projet de construction personnalisable situé à Bédée, au cœur du quartier de la ZAC du Pont aux Chèvres, dans un environnement résidentiel, à deux pas du centre bourg.
Le projet est implanté sur un terrain de 498 m², orienté SUD.
Maison 103 m² – 4 chambres – Garage
Cet exemple de maison à étage de 103 m² habitables se compose :
Au rez-de-chaussée :
- Une entrée
- Une pièce de vie de 40 m² avec cuisine semi-ouverte
- Un coin nuit desservant une chambre avec salle d’eau privative
- Des WC séparés
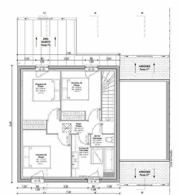
À l’étage :
- 3 chambres avec placards
- Une salle de bain / douche
- Des WC séparés
Annexes
- Un cellier de 6 m²
- Un garage de 22 m²
Pour de plus amples renseignements, contactez notre équipe commerciale MAISONS CRÉATION : 02 99 05 36 46
Informations complémentaires
| Chambre(s) : 3 | Salle(s) de bain : 2 | Surface habitable : 103 m² |
| Surface terrain : 498 m² | Surface annexe : 45 m² | Garage(s) : 1 |
| Prix : 329 000 € |
Géolocalisation du bien
*Terrain proposé et vendu par notre partenaire foncier selon disponibilité et autorisation de publicité, prix du terrain hors frais de notaire et d’hypothèque.
Prix maison : hors papiers peints, peintures, revêtements de sol dans les chambres, cuisines, meubles vasques, et faïences (modifiable sans préavis, prix variables suivant les prestations souhaitées) hors frais d’hypothèque.






