MAISONS CRÉATION vous propose un projet de construction RE2020 entièrement personnalisable, situé sur la commune de Baguer-Pican, à proximité du bourg, de ses commodités et à quelques minutes du bord de mer.
Le projet est implanté sur un terrain de 387 m², dans un environnement paisible et verdoyant, idéal pour une résidence principale ou secondaire.
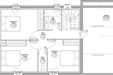
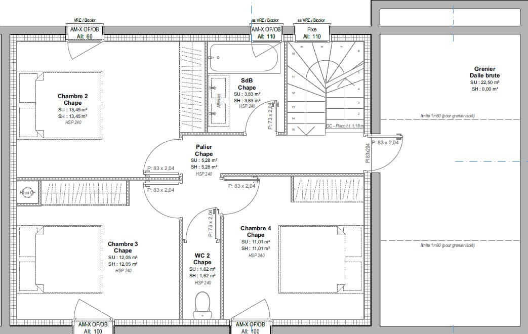
Cet exemple de maison développe 123 m² habitables et se compose :
Au rez-de-chaussée :
- Un très bel espace de vie lumineux
- Une suite parentale avec dressing
- Un WC indépendant
À l’étage :
- 3 belles chambres
- Une salle de bains
Annexes
- Garage attenant, idéal pour le stationnement et le rangement
Un projet personnalisable
Pour plus de renseignements, contactez notre équipe commerciale MAISONS CRÉATION : 02 99 05 36 46
Informations complémentaires
| Chambre(s) : 4 | Salle(s) de bain : 2 | Surface habitable : 123 m² |
| Surface terrain : 387 m² | Surface annexe : 45 m² | Garage(s) : 1 |
| Prix : 310 000 € |
Géolocalisation du bien
*Terrain proposé et vendu par notre partenaire foncier selon disponibilité et autorisation de publicité, prix du terrain hors frais de notaire et d’hypothèque.
Prix maison : hors papiers peints, peintures, revêtements de sol dans les chambres, cuisines, meubles vasques, et faïences (modifiable sans préavis, prix variables suivant les prestations souhaitées) hors frais d’hypothèque.




