MAISONS CRÉATION vous propose un projet de construction RE2020 situé à Baguer-Morvan, à proximité du bord de mer, dans un cadre paisible et verdoyant, tout en restant proche du bourg et de l’ensemble des commodités.
Le projet est implanté sur un terrain de 432 m², offrant un cadre de vie confortable entre littoral et vie quotidienne facilitée.
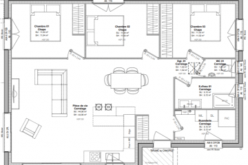
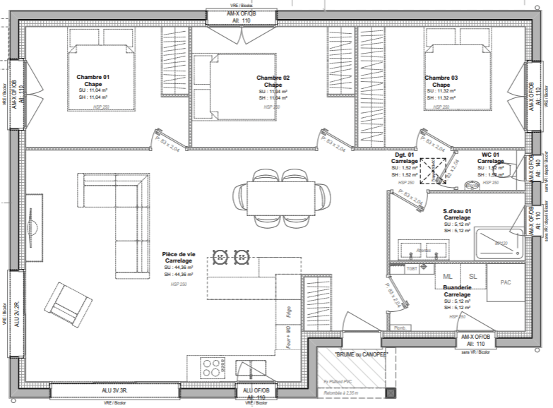
Cet exemple de maison RE2020 développe 91 m² habitables et se compose :
- Un grand espace de vie lumineux
- 3 grandes chambres
- Une salle de bains
- 1 WC indépendant
Annexes
- Un grand garage, offrant un important volume de rangement en plus de l’espace de stationnement
Un projet personnalisable
Projet incluant le prix du terrain, les garanties et assurances (hors frais annexes liés au terrain et aux finitions de la maison).
Pour plus de renseignements, contactez notre équipe commerciale MAISONS CRÉATION : 02 99 05 36 46
Informations complémentaires
| Chambre(s) : 3 | Salle(s) de bain : 1 | Surface habitable : 91 m² |
| Surface terrain : 476 m² | Surface annexe : 45 m² | Garage(s) : 1 |
| Prix : 241 000 € |
Géolocalisation du bien
*Terrain proposé et vendu par notre partenaire foncier selon disponibilité et autorisation de publicité, prix du terrain hors frais de notaire et d’hypothèque.
Prix maison : hors papiers peints, peintures, revêtements de sol dans les chambres, cuisines, meubles vasques, et faïences (modifiable sans préavis, prix variables suivant les prestations souhaitées) hors frais d’hypothèque.




