MAISONS CREATION vous propose un projet de construction personnalisable sur un terrain de 382 m², exposé Sud, situé dans un environnement résidentiel privilégié de Pacé.
Maison 121 m² – 4 chambres – Garage
Cet exemple de maison contemporaine de 121 m² habitables se compose :
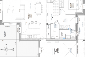
Au rez-de-chaussée :
- D'un espace de vie lumineux, pensés pour le confort et la fonctionnalité
- D'une buanderie
- Une suite parentale avec salle d’eau non privative
- Un WC indépendant
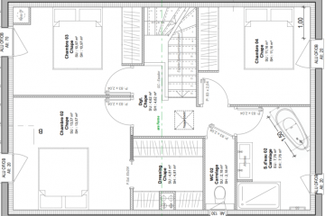
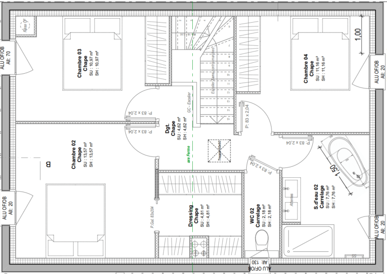
À l’étage :
- 3 chambres dont une de 17m² avec dressing
- Une salle de bains familiale avec baignoire et douche
- Un WC indépendant
Annexes
- Un garage attenant
Informations complémentaires
| Chambre(s) : 4 | Salle(s) de bain : 2 | Surface habitable : 121 m² |
| Surface terrain : 382 m² | Surface annexe : 45 m² | Garage(s) : 1 |
| Prix : 411 000 € |
Géolocalisation du bien
*Terrain proposé et vendu par notre partenaire foncier selon disponibilité et autorisation de publicité, prix du terrain hors frais de notaire et d’hypothèque.
Prix maison : hors papiers peints, peintures, revêtements de sol dans les chambres, cuisines, meubles vasques, et faïences (modifiable sans préavis, prix variables suivant les prestations souhaitées) hors frais d’hypothèque.





