À seulement 15 minutes de Rennes , MAISONS CRÉATION vous propose un projet sur mesure dans un cadre idéal.
Terrain de 236 m², orientés SUD.
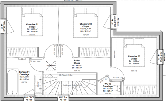
Maison de 3 à 4 chambres, entre 90 m² et 102m² habitables, comprenant :
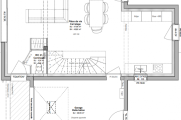
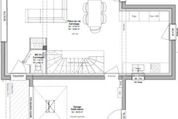
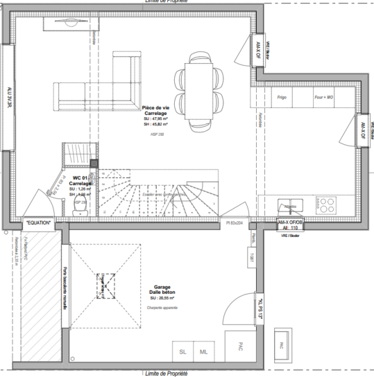
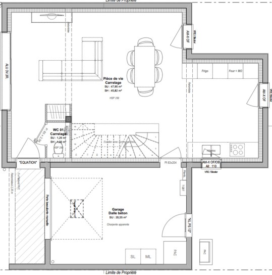
- Au rez-de-chaussée : entrée, pièce de vie d'environ 45 m² avec cuisine ouverte, une buanderie et WC séparés. Possibilité 4ème chambre.
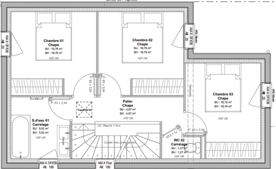
- À l’étage vous trouverez 3 chambres avec placards, une salle de bain et WC séparés.
Un garage vient compléter ce bien.
Pour plus de renseignements contactez-nous au 02 99 05 36 46.
Informations complémentaires
| Chambre(s) : 3 | Salle(s) de bain : 1 | Surface habitable : 90 m² |
| Surface terrain : 236 m² | Surface annexe : 45 m² | Garage(s) : 1 |
| Prix : 250 500 € |
Géolocalisation du bien
*Terrain proposé et vendu par notre partenaire foncier selon disponibilité et autorisation de publicité, prix du terrain hors frais de notaire et d’hypothèque.
Prix maison : hors papiers peints, peintures, revêtements de sol dans les chambres, cuisines, meubles vasques, et faïences (modifiable sans préavis, prix variables suivant les prestations souhaitées) hors frais d’hypothèque.




