Au cœur du quartier du Val de Sermon à Mordelles, MAISONS CREATION vous propose un projet de construction dans un cadre de vie paisible.
Sur un terrain de 570m², nous vous proposons une maison d'une surface habitable de 119 m², comprenant :
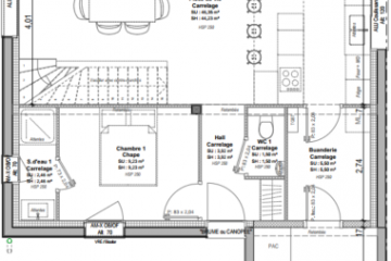
Au rez-de-chaussée : une entrée, une belle pièce de vie d’environ 45 m² avec cuisine ouverte, une buanderie, une chambre avec salle d'eau et des WC séparés.
À l’étage : deux chambres équipées de placards et une chambre avec dressing et salle d'eau, une salle de bains commune et des WC indépendants.
Un garage vient compléter ce projet. Pour en savoir plus, contactez-nous au 02 99 05 36 46.
Informations complémentaires
| Chambre(s) : 4 | Salle(s) de bain : 3 | Surface habitable : 119 m² |
| Surface terrain : 570 m² | Surface annexe : 48 m² | Garage(s) : 1 |
| Prix : 370 350 € |
Géolocalisation du bien
*Terrain proposé et vendu par notre partenaire foncier selon disponibilité et autorisation de publicité, prix du terrain hors frais de notaire et d’hypothèque.
Prix maison : hors papiers peints, peintures, revêtements de sol dans les chambres, cuisines, meubles vasques, et faïences (modifiable sans préavis, prix variables suivant les prestations souhaitées) hors frais d’hypothèque.








