Idéal Primo-accédant à Saint-Aubin-des-Landes !
Située à proximité de Vitré et de l'Axe Rennes - Paris, cette maison design à toit plat bénéficie d'une belle luminosité et d'un jardin et 230m² orienté Sud-Ouest.
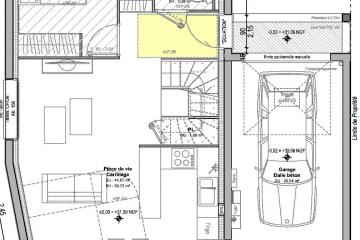
Résidence principale, cette maison cubique est à proximité des commodités et services. Elle se compose de 5 pièces répartie sur 102m².
Cette maison comprend au rez-de-chaussée, une entrée, une cuisine ouverte, des WC séparés, un Salon / Séjour de 40m², une chambre avec une salle d'eau et placard,
A l'étage, vous pourrez profiter, de WC séparés, d'une salle de bains, d'une chambre parentale avec dressing et de 2 autres chambres avec placard.
Cette maison dispose également d'un garage attenant.
Votre projet Maison + Terrain à partir de 231600€ (Hors frais)
Informations complémentaires
| Chambre(s) : 4 | Salle(s) de bain : 2 | Surface habitable : 102 m² |
| Surface terrain : 230 m² | Surface annexe : 40 m² | Garage(s) : 1 |
| Prix : 231 600 € |
Géolocalisation du bien
*Terrain proposé et vendu par notre partenaire foncier selon disponibilité et autorisation de publicité, prix du terrain hors frais de notaire et d’hypothèque.
Prix maison : hors papiers peints, peintures, revêtements de sol dans les chambres, cuisines, meubles vasques, et faïences (modifiable sans préavis, prix variables suivant les prestations souhaitées) hors frais d’hypothèque.





