Noyal-Châtillon Sur Seiche est une commune dynamique, en première couronne de Rennes, située à 5km au sud de Rennes (Arrêt métro A Triangle ou Fréville et lignes de bus (61 / 161/ 91) de Rennes Métropole, disposant de 3 groupes scolaires, un pôle culturel, associatif et sportif, ainsi que de nombreux commerces.
Maisons Création vous propose une maison de 119m² sur un terrain de 337m².
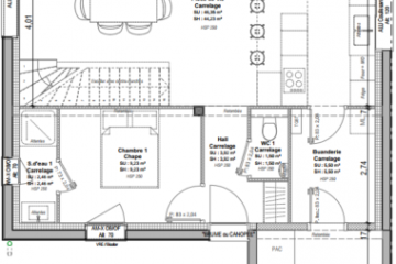
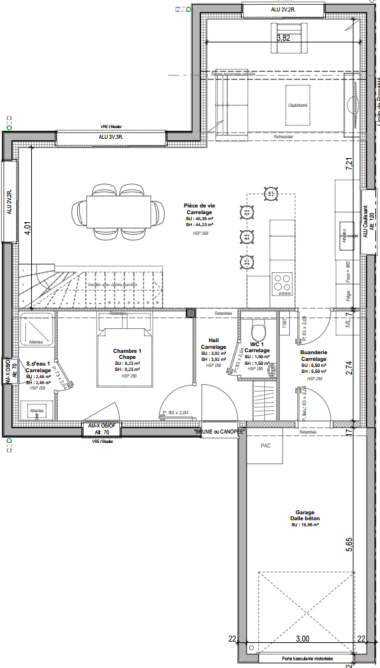
Au rez-de-chaussée, vous trouverez : une pièce de vie de 45m² dont un salon avec une hauteur déplafonnée, une arrière-cuisine, une chambre avec salle d'eau, des WC indépendants, un garage.
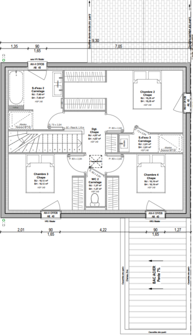
A l'étage : 3 chambres dont une suite parentale avec salle d'eau attenante, une salle de bains commune et des WC indépendants.
Le projet est entièrement personnalisable.
Pour plus de renseignements contactez-nous au 02 99 05 36 46.
Informations complémentaires
| Chambre(s) : 4 | Salle(s) de bain : 3 | Surface habitable : 119 m² |
| Surface terrain : 337 m² | Surface annexe : 45 m² | Garage(s) : 1 |
| Prix : 305 000 € |
Géolocalisation du bien
*Terrain proposé et vendu par notre partenaire foncier selon disponibilité et autorisation de publicité, prix du terrain hors frais de notaire et d’hypothèque.
Prix maison : hors papiers peints, peintures, revêtements de sol dans les chambres, cuisines, meubles vasques, et faïences (modifiable sans préavis, prix variables suivant les prestations souhaitées) hors frais d’hypothèque.






