Situé à 10 minutes de JANZÉ, MAISONS CREATION vous propose un projet de construction personnalisable sur la commune de ESSE.
Terrains de 240 m², orientés SUD.
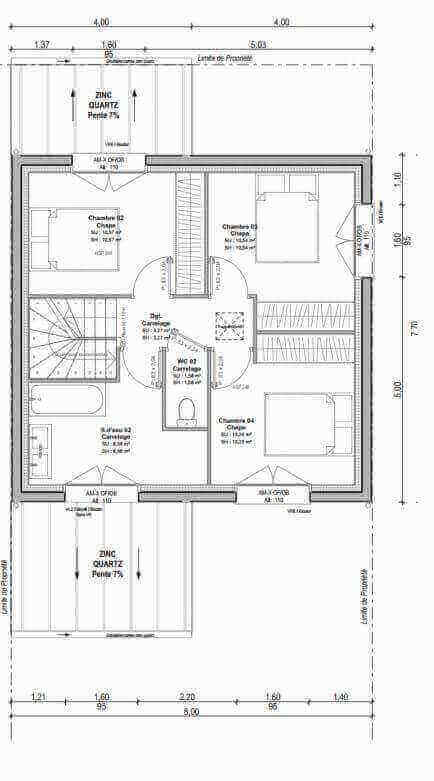
Maisons de 3 à 4 chambres, entre 90 m² et 106m² habitables, comprenant :
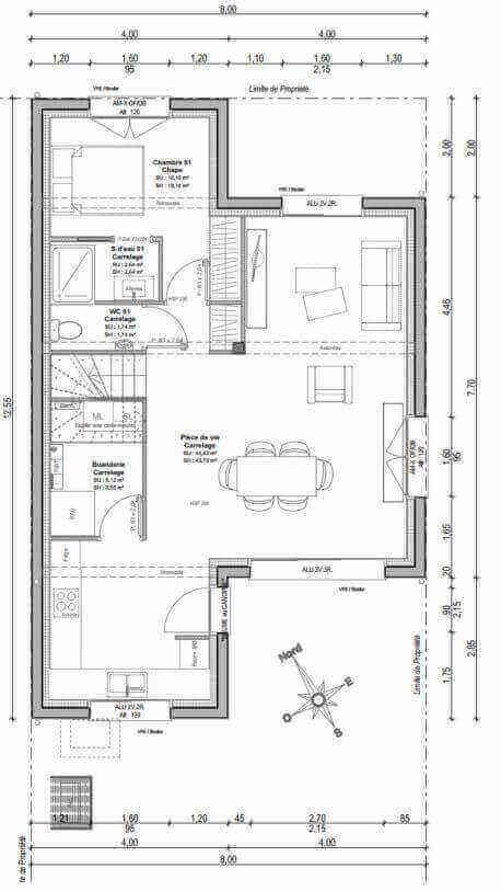
- Au rez-de-chaussée : entrée, pièce de vie d'environ 40 m² avec cuisine ouverte, une buanderie et WC séparés. Possibilité 4ième chambre.
- À l’étage vous trouverez 3 chambres avec placards, une salle de bain et WC séparés.
En option garage ou carport et abris vélos, viennent compléter ce bien.
Pour plus de renseignements contactez-nous au 02 99 05 36 46.
Informations complémentaires
Chambre(s) : 3 | Salle(s) de bain : 1 | Surface habitable : 91 m² |
Surface terrain : 240 m² | Surface annexe : 40 m² | Garage(s) : 1 |
Prix : 193 229 € |
Géolocalisation du bien
*Terrain proposé et vendu par notre partenaire foncier selon disponibilité et autorisation de publicité, prix du terrain hors frais de notaire et d’hypothèque.
Prix maison : hors papiers peints, peintures, revêtements de sol dans les chambres, cuisines, meubles vasques, et faïences (modifiable sans préavis, prix variables suivant les prestations souhaitées) hors frais d’hypothèque.