Intéressé par la construction d’une maison en Ille-et-Vilaine, Côtes d’Armor ou Morbihan, vous pouvez nous laisser vos coordonnées et renseignez la commune sur laquelle vous souhaitez construire, un conseiller commercial vous rappellera dans les meilleurs délais.
Informations complémentaires
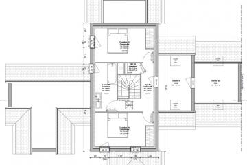
Chambre(s) : 4
Chambre en rez-de-chaussée : Oui
Salle(s) de bain : 2
Surface habitable : 139 m²
Surface annexe : N.C.
Garage(s) : 1
*Hors raccordements, papiers peints, peintures, revêtement de sol dans les chambres, aménagements extérieurs (modifiable sans préavis, prix variables suivant les prestations souhaitées) Hors frais d’hypothèque.